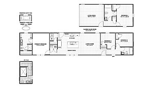
Exterior Wall On Center: 16" OC W/2X4 Top Plate
Exterior Wall Studs: 2x4 Exterior Walls
Floor Decking: 19/32" Tounge & Groove OSB Floor Decking
Floor Joists: 2x6 Transverse Floor Joists - 19.2 On-Center
Interior Wall On Center: 24" On Center
Interior Wall Studs: 2x3 Marriage Walls
Roof Truss: Engineered Roof Trusses 24" On-Center
Side Wall Height: 8 Ft. Residential Sidewalls
Insulation (Floors): R-11
Insulation (Walls): R-11
Insulation (Ceiling): R-19
Front Door: 38x80 Steel Front Door w. Storm Installed
Rear Door: 9 Lite Outswing Rear Door
Shingles: Certaineed 20-Year Fiberglass Shingles
Siding: Vinyl Siding w. Insulated Foam Core Underlayment
Window Type: 60" Low E Vinyl Windows (NO GRIDS)
Exterior Lighting: Jelly Jar Exterior Lights
Safety Alarms: Smoke Detectors Living Areas and Bedrooms
Window Type: 60" Low E Vinyl Windows (NO GRIDS)
Interior Doors: Arched 2-Panel Interior Doors
Interior Lighting: 2 Bulb Lights Living Areas & Master Bedroom / Overhead Light in All Walk-In Closets / Wire & Brace for Ceiling Fan in Living Room / Can Lighting DR
Electrical Service: 200 AMP Electrical Service
Water Heater: 30 Gallon Water Heater
Water Shut Off Valves: Whole House Water Cut-Off
Bathroom Sink: China Lavs in Bathrooms
Bathroom Lighting: Can Lighting in All Sinks
Bathroom Fans: Power Vent in Bathrooms
Bathroom Additional Specs: Framed Mirror Master Bath
Bathroom Shower: 60" Fiberglass Shower Master Bath / Fiberglass Tub Shower Hall Bath
Kitchen Sink: Stainless Steel Kitchen Sink
Kitchen Refrigerator: 18 Cu Ft Frost Free Refrigerator - No Icemaker
Kitchen Range Type: 30" Coil Top Electric Range
Kitchen Range Hood: Range Vent Cover / Glass Range Hood
Kitchen Faucets: Goose Neck Faucet - No Sprayer
Kitchen Drawer Type: Bank of Drawers in Kitchen
Kitchen Countertops: Formica Counter Edging
Kitchen Cabinetry: 42" Overhead Cabinets
Kitchen Backsplash: Formica Backsplash