Eastland Concepts - St. Paul EC14562B

Overview

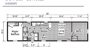
About this home

St. Paul EC14562B
Manufactured
Share this home

Details

Built by Cavco Shippenville
Bedrooms 2
Bathrooms 1.00
Square feet 747
Length 56' 0"
Width 14' 0"
Sections 1
Stories 1
Style Ranch

Tours & videos

No 3d Tour Available

Specifications

Additional Specs: Recessed Frame Design
Exterior Wall On Center: 16” Centers / NOTE: Spacing for Framing Members may vary due to Design Requirements
Exterior Wall Studs: 2x6 Exterior Walls
Floor Decking: ¾” T&G OSB Floor Decking
Other: 2x6 Transverse Floor – 12/14 wide / 2x8 Transverse Floor – 16 wide
Roof Load: 20# Roof Load
Side Wall Height: 8’ Sidewall Height
Insulation (Floors): R-22
Insulation (Walls): R-19
Insulation (Ceiling): R-25 Avg. Blown in Ceiling - Single
Eaves: 4” Eaves
Shutters: 15” Raised Panel Shutters on Front Doo
Additional Specs: OSB with Wind Wrap / 12” Gable End Overhang / Ridgevent Roof Ventilation System
Door Locks: Schlage Exterior Locksets Keyed Alike
Front Door: 38x82 Fiberglass 6-Panel Front Door
Rear Door: 34x82 Fiberglass 6-Panel Rear Door
Shingles: Architectural Shingle
Siding: Vinyl Dutch Lap Siding
Window Type: Vinyl Insulated Windows w/Grids
Exterior Lighting: Gatsby Light - Front & Rear Door
Exterior Outlets: One GFI-Protected Exterior Receptacle
Ceiling Texture: Stipple Ceiling
Ceiling Type Or Grade: Flat Ceiling Throughout
Safety Alarms: Smoke Detectors With Battery Back-Up
Wall Finish: Vinyl Wall Coverings on Gypsum Walls
Interior Doors: White 2-Panel Passage Doors / Pre-Hung Door Jambs / Mortise Hinges / Floor Mount Door Stops / Metal Interior Passage Sets
Interior Lighting: LED Flush Mount Ceiling Lights
Window Decor: 2” Mini Blinds Throughout
Cabinetry & Counters: Wire Shelving in Guest Closet
Additional Specs: Switched Light Each Bedroom (LED) / Vinyl Wall Coverings in all Bedrooms / Egress Window Each Bedroom / Wire Shelving in Wardrobes / Switched Light in All Walk-In Closets / Drape Package in Secondary Bedrooms
Carpet Type Or Grade: Choice of Various Styles of Textured Carpet / Standard Shaw Edgewater / Upgrade Styles Available / Rebond Carpet Pad with Tackstrip / Carpet Installation / Shaw Fortress – Vinyl Floor Coverings
Electrical Service: 100 AMP Electrical Service with Extended P
Electrical Wiring: Copper Wiring Throughout
Furnace: Gas Furnace - White 2-Panel Door w/Grill / Air Exchanger System for Furnace
Heat Duct Registers: Furnace Aluminum Heat Ducts /Perimeter Heat / In-Floor Cross-Over Heating System
Thermostat: 8-Wire Thermostat
Washer Dryer Hook Up: Vented and Wired for Dryer
Washer Dryer Plumb Wire: Plumbed and Wired for Washer
Water Heater: 40 Gallon Electric Water Heater with Pan
Water Shut Off Valves: Water Shut Offs Throughout
Bathroom Cabinets: Furniture Style Lav / 36” High Bath Vanities / Base Shelf in Vanities
Bathroom Sink: Square China Lav
Bathroom Faucets: Structured Flow Faucets / Anti-Scald Faucets in Tub/Shower
Bathroom Fans: Lighted Vent Fan in Each Bath
Bathroom Additional Specs: Shower Drain with Removable Strainer
Bathroom Shower: 60” Fiberglass Tub/Showers
Bathroom Toilet Type: 1.6 Gallon Per Flush Elongated Toilets / China Stool, Tank and Lid
Kitchen Sink: Stainless Steel Sink - 33x22x8
Kitchen Refrigerator: 18 Cubic Foot Black, No-Frost Refrigerator
Kitchen Range Type: 30” Deluxe Black Gas Range
Kitchen Range Hood: Power Range Hood with Light
Kitchen Faucets: Structure Flow Single Lever w/ Sprayer Faucet
Kitchen Drawer Type: Soft Close Drawer Guides / Dovetail Drawers
Kitchen Countertops: Laminate
Kitchen Cabinetry: Evermore Custom Cabinetry (KCMA Certified) / MDF Mission Style Cabinet Doors / 42” Overhead Cabinets / Cabinet Pulls / Contemporary Crown Moulding on Kitchen Cabinets / Lined Overhead Cabinets / 30” Staggered Height Overhead Cabinets / Concealed Cabinet Hinges
Kitchen Backsplash: Laminate
Kitchen Additional Specs: 1 USB Receptacle

Photos