Essence - Olympus 27001

Overview

About this home

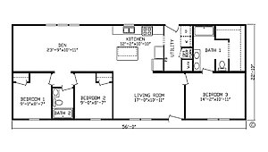
The Essence / Olympus 27001 built by Cavco Nappanee is a spacious and inviting home designed for everyday comfort and flexibility. This 1,279 square foot layout features 3 bedrooms and 2 bathrooms, giving everyone room to spread out while still feeling connected. The large living room sits at the center of the home and flows easily into the kitchen, making it a great space for relaxing or gathering together. A generous den adds extra versatility and can be used as a second living area, workspace, or hobby room. The primary bedroom includes its own bathroom, while two additional bedrooms are located near the second bath for convenience. With smart room placement and a warm, open feel, The Olympus 27001 is a welcoming home that fits many lifestyles.
Manufactured
Share this home

Details

Built by Cavco Nappanee
Bedrooms 3
Bathrooms 2.00
Square feet 1279
Length 56' 0"
Width 22' 10"
Sections 2
Stories 1
Style Ranch

Tours & videos

No 3d Tour Available

Specifications

Additional Specs: Positive Operating System / Rafters 24” O.C. / Ice & Water Barrier / Raised Panel Shutters (Hitch End Only on Single Wides & Door Side Only on Double Wides) / 7/16” OSB Sheathing / House Wrap / Foam Sealant Air Infiltration Barriers (All Windows & Doors)
Floor Decking: 19/32” Tongue & Groove OSB Floor Decking
Floor Joists: 16” O.C. Floor Joists
Interior Wall Studs: 2x4 Sidewalls
Side Wall Height: 8’ Sidewall Height with Flat Ceiling
Insulation (Floors): R-11 Floor Insulation
Insulation (Walls): R-11 Insulation
Insulation (Roof): R-29 Roof Insulation
Front Door: 36” Panel Steel Front Door with Deadbolt
Rear Door: 36” Panel Steel Rear Door with Deadbolt
Roof Pitch: Nominal 3/12 Roof Pitch
Shingles: TAMKO® 25 Year Shingled Roof
Siding: Royal® Double 4” Dutch Vinyl Lap Siding
Window Type: Kinro® White Low-E Easy Clean Tilt-Out Sash, Single-Hung Thermopane Windows, No Grids
Exterior Lighting: Porch Light at Front & Rear Doors
Exterior Outlets: Exterior GFI Weather Resistant Receptacle on Sidewall
Ceiling Texture: Textured Stippled Ceilings
Safety Alarms: Smoke Alarms
Wall Finish: 1/2” Decorative Vinyl on Gypsum Walls — Factory Select
Interior Doors: Pre-Hung 2-Panel Arch Top White Interior Doors / Triple Hinged Interior Doors
Interior Lighting: Recessed LED Can Lights in Kitchen, Dining Room & Bedrooms
Cabinetry & Counters: Wrapped Face Frames/Wrapped Cabinetry No Hardware, Shaker Style / OH Cabinets with Adjustable Shelves / Hidden Hinges / Dove Tail Drawer Construction / Side Mounted Drawer Guides
Carpet Type Or Grade: Congoleum® Armorflor® Roll Goods — Factory Select / Roll Goods Throughout
Interior Specs: 1-1/2” Door & Window Casing / Mini Blinds Throughout
Electrical Service: 100 AMP Service
Furnace: Gas Furnace
Shut Off Valves Throughout: Main Water Shut-Off Below Floo
Utility Cabinets: Wire Shelving in Pantry & Linen
Washer Dryer Hook Up: Plumbing for Washer
Washer Dryer Plumb Wire: Wire and Vent for Dryer
Water Heater: 30 Gallon Electric Water Heater
Door Hardware: Wall Mounted Door Stops / Satin Nickel Interior Door Knobs
Bathroom Faucets: Metal Faucets
Bathroom Fans: Power Exhaust Fan
Bathroom Additional Specs: Water Heater Access with Chalkboard Panels (Per Print) Baths / Pop-Up Drains on Bath Sinks with Overflows / GFI Bath & Kitchen Receptacles
Bathroom Toilet Type: Porcelain Toilets
Bathroom Bathtubs: 1 Piece Fiberglass Tub in Baths
Bathroom Mirror: Bathroom Mirrors with Clips
Kitchen Sink: 7” Deep Stainless Steel Kitchen Sink
Kitchen Refrigerator: Black 18 CF Frost Free Refrigerator
Kitchen Range Type: Black 30” Standard Gas Range
Kitchen Range Hood: Black 30” Range Hood
Kitchen Cabinetry: 40” Overhead Kitchen Cabinets / Shelf over Refrigerator & Range

Photos