Sandpointe - SP28482A

Overview

About this home

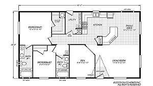
Sandpointe SP28482A – Beautifully crafted well proportioned home ideal for entertaining, features spacious open concept living room, state-of-the-art kitchen with large serving/snack/gathering bar, large den, large master bedroom with in suite bath, king size guest bedroom and well located second bath.
Manufactured
Share this home

Details

Built by Cavco Woodburn
Bedrooms 2
Bathrooms 2.00
Square feet 1280
Length 48' 0"
Width 28' 0"
Sections 2
Stories 1
Style Ranch

Tours & videos

No 3d Tour Available

Specifications

Exterior Wall On Center: 16” On Center
Exterior Wall Studs: Sidewalls- 2 x 4
Floor Decking: Floor Decking- 4 x 8 x 19/32”, Tongue & Groove OSB
Floor Joists: Floor Joists- 2 x 6, 16” On Center
Roof Load: Roof Load- 20 Pound with Trusses 24” On Center
Side Wall Height: 96” Flat Ceiling
Insulation (Floors): R11
Insulation (Walls): R21
Insulation (Ceiling): R21
Front Door: Front Entry Door- 36” In-Swing
Rear Door: Rear Door- 32” In-Swing
Roof Pitch: Roof Pitch- 6/12
Shingles: Shingles- Limited Lifetime Waranty (factory choice)
Siding: LP Smartside Panels - Limited Warranty, Durable
Window Trim: Exterior Window Treatment- 4” Trim
Window Type: Windows- Low-E Vinyl Windows with Argon Gas
Exterior Lighting: White Light Fixture
Ceiling Texture: Ceiling Sheetrock Thickness- 1/2” High Density
Window Type: Windows- Low-E Vinyl Windows with Argon Gas
Electrical Service: 200AMP
Water Heater: 30 Gallon Electric
Bathroom Cabinets: Raised Panel Doors, 36” High Lavy
Bathroom Sink: Acrylic
Bathroom Lighting: Ceiling Mounted Light
Bathroom Flooring: Vinyl Flooring
Bathroom Faucets: Chrome, Dual Handle
Bathroom Backsplash: 4” Laminate
Bathroom Shower: 60” Acrylic with 3-Piece Surround
Kitchen Sink: 6” Deep Stainless Steel
Kitchen Refrigerator: 16 CF Frost Free, Black (or larger, factory choice)
Kitchen Range Type: Electric, Black
Kitchen Lighting: Ceiling Mounted Light
Kitchen Flooring: Vinyl Flooring
Kitchen Faucets: Chrome Dual Handle
Kitchen Cabinetry: Kitchen Overhead Cabinets- 30” Raised Panel Doors
Kitchen Backsplash: 4” Laminate

Photos